ROWAN

Rowan’s design has all the beauty and none of the maintenance that comes with traditional exterior wood. Its towering architecture starts with a grounded brick base and moves all the way up to the walnut soffit highlighting the soaring asymmetrical peak. The horizontal and vertical lines give the eye a feast, while the continuation of warm walnut cladding and front balcony bring that restful balance to home. The newly designed modern home, ROWAN.

Contact today for more information

First Floor

This level begins with an unprecedented attached oversized 2-vehicle garage. This garage not only has room for opening car doors but also bikes, kayaks, and every storage needs you can dream of. This spacious entry has an elevated look with built-in wardrobe cabinetry to stow away outerwear and everyday items. The flex space makes for a perfect work from home office or perhaps an additional TV room. Don’t forget the full bathroom with floating wood vanity, high-end quartz, and wall mount tap ware for a perfect modern finish. A modern open stairwell connecting the next floor for seamless flow of space.


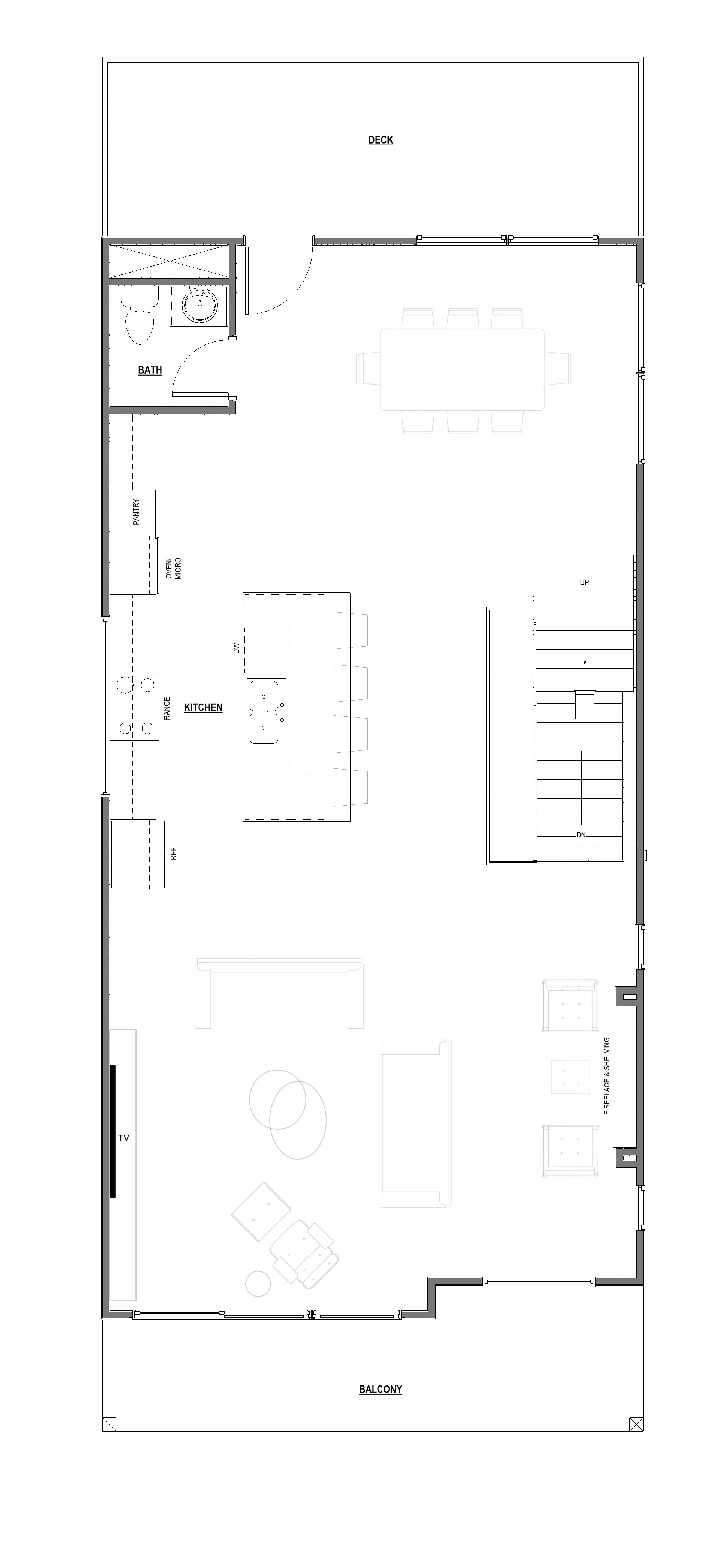
Second Floor

The warmth continues as you follow the timber stairs up into the main living space. There is an open floor plan that facilitates natural light throughout. The living room and its wide view of the city is breathtaking. Cozy up to a 75” linear fireplace with builtin bookcase or step out onto the outdoor living space. The 24 foot wide front balcony allows you to take in all the city has to offer. The modern kitchen with its 8 foot horizontal window, double depth island and quartz are show stoppers. Custom linear cabinets are the perfect warmth to this clean modern design. To the rear of this open concept is dining that can fit the whole family with light filled floor to ceiling windows. The high-impact half bath features a wall hung quartz vanity and statement wall mount tap ware. Lastly, on this floor, is the second outdoor space. A large rear deck is perfect for outdoor grilling and dining.


Owner’s Suite

This suite is inspired by the open modern design movement, and in turn, becomes the curated calm in your day. Bringing the natural elements of wood and stone indoors relaxes and balances. Another beautiful view of the city that stretches across the river to Purdue University. A sky soaring 14 foot high two person shower showcases a plant ledge with natural light. Warm gold fixtures with modern lines are found throughout the open bath plan. A designer drop edge quartz double vanity with wall mount tap ware and quartz ledge are flooded with upper natural light. A vaulted ceiling allows for bespoke light fixtures throughout this suite. An efficient custom closet features a wood and quartz builtin to hold daily items.


Third Floor

The timber stairs and natural light windows continue up to the perfectly balanced third floor. An open stair railing, with continuous flooring and color pallet, makes for a spacious feel. The large laundry room has a sink for hand washables, a large folding counter and plenty of space for all your laundry needs. The large guest bath with modern vanity and quartz round out a cohesive design. The second and third bedrooms finish out the third floor of Rowan.